本文
1974年築、市の中心市街地近くに建つ、好立地賃貸戸建物件です!

| 物件詳細 | 生活条件 | ||
| 登録日 | 2026年4月9日 | 駅 | JR江津駅まで、約500m |
| 物件番号 |
399 |
バス | 旧江津市役所前バス停まで、約200m |
| 賃貸価格 | 6.3万円 | 小学校 | 郷田小学校まで、約500m |
| 売却価格 | 中学校 |
江津中学校まで、約1.1km |
|
| 構造 |
木造2階建 |
病院 | 船津内科医院まで、約270m |
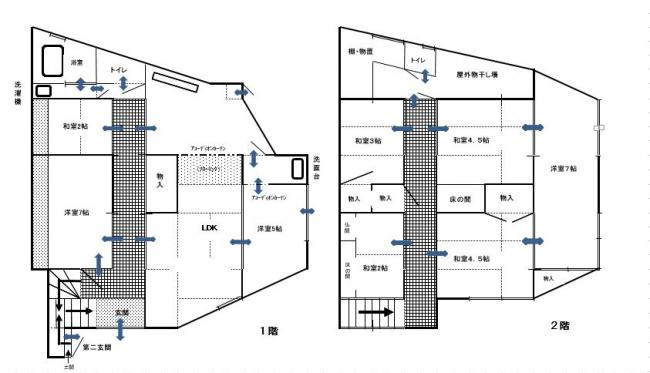
| 間取り | 5LDK | 公民館 | 郷田地域コミュニティ交流センターまで、約100m |
| 駐車場 |
無(近隣に貸駐車場あり) |
役場 | 江津市役所本庁舎まで、約400m |
| 農地 | 無 | 商業 | ゆめタウン江津まで、約300m |
| 建築年 | 1974年 | 保育施設 |
たまえ保育園まで、約400m |
| 家財 |
無 |
通信環境 | |
| 入居条件 | ネット環境 | 内覧時に現地でご説明します | |
| 飲用水 | 公営水道 | モバイル環境 | docomo,au,softbank:LTEエリア内 |
| トイレ | 水洗 | 敷金 | 賃料の2か月 |
| 生活排水 | 合併浄化槽 | 礼金 | 賃料の1か月 |
| 特記事項 |
|
||
| 修繕箇所 |
・庭木伐採 |
||
| 紹介文 |
◎旧江津市役所近くに建つ、1974年築戸建賃貸物件です。 |
||
江津市地域振興課定住推進係:0855-52-7926(直通)