本文
下水接続済!中心市街地ほど近くに建つ、1977年築庭付き中古物件です!
| 物件詳細 | 生活条件 | ||
| 登録日 | 2026年2月20日 | 駅 | JR江津駅まで、約1.8km |
| 物件番号 |
481 |
バス | 中央公園口バス停まで、約550m |
| 賃貸価格 | 小学校 | 高角小学校まで、約1.1km | |
| 売却価格 |
350万円 |
中学校 |
江津中学校まで、約1.2km |
| 構造 |
木造2階建 |
病院 | 井廻医院まで、約360m |
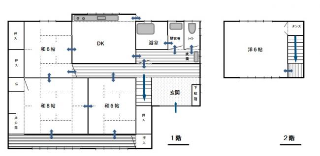
| 間取り | 4DK | 公民館 | 嘉久志地域コミュニティ交流センターまで、約700m |
| 駐車場 |
無(近隣に貸駐車場あり) |
役場 | 江津市役所本庁舎まで、約1.1km |
| 農地 | 無 | 商業 | キヌヤ江津店まで、約900m |
| 建築年 | 1977年 | 保育施設 |
めぐみ保育園まで、約1.3km |
| 家財 |
有(家財撤去後の引き渡し) |
通信環境 | |
| 入居条件 | ネット環境 | なし | |
| 飲用水 | 公営水道 | モバイル環境 | docomo,au,softbank:LTEエリア内 |
| トイレ | 水洗 | ||
| 生活排水 | 公共下水 | ||
| 特記事項 |
【重要】建築基準法上の接道要件を満たしていないため、再建築不可です。 |
||
| 修繕箇所 |
■天井染み(数か所/雨漏り痕の可能性あり) |
||
| 紹介文 |
◎江津市役所から西へ車で3分ほどにある、1977年築2階建ての物件です。 |
||

江津市地域振興課定住推進係:0855-52-7926(直通)