本文
【価格交渉可】家財撤去済!住みやすさ抜群の立地に建つ一軒家です。


| 物件詳細 | 生活条件 | ||
| 登録日 | 2019年5月16日 | 駅 | JR江津駅まで、約850m |
| 物件番号 | 343 | バス | 江津市役所前バス停まで、約500m |
| 賃貸価格 | 小学校 | 高角小学校まで、約1.4km | |
| 売却価格 | 500万円【価格交渉可】 | 中学校 | 江津中学校まで、約1.1km |
| 構造 | 木造2階建 | 病院 | 船津内科医院まで、約450m |
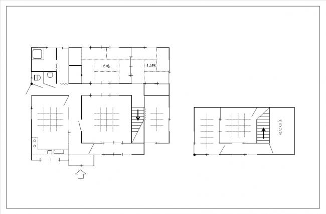
| 間取り | 5DK | 公民館 | 嘉久志地域コミュニティ交流センターまで、約800m |
| 駐車場 | 有 3台 | 役場 | 江津市役所本庁舎まで、約600m |
| 農地 | 無 | 商業 | ゆめタウン江津(総合スーパー)まで、約300m |
| 建築年 | 1978年 | 保育施設 | たまえ保育園まで、約170m |
| 家財 | 無 | 通信環境 | |
| 入居条件 | ネット環境 | 内覧時にご説明します。 | |
| 飲用水 | 公営水道 | モバイル環境 | docomo,au,softbank:LTEエリア内 |
| トイレ | 汲み取り(簡易水洗) | ||
| 生活排水 | 側溝 | ||
| 特記事項 | 価格交渉可能です。内覧時にご相談ください。 | ||
| 修繕箇所 | 有(床たわみ、2階廊下天井雨漏り ほか、内覧時にご確認ください) | ||
| 紹介文 |
◎江津市の中心市街地に建つ一軒家です。屋内外の家財は、すべて撤去済です。 |
||

【江津市外にお住まいの人】
江津市地域振興課定住推進係:0855-52-7926(直通)
【江津市内にお住まいの人】
立川不動産:0855-52-2379